Haus zum Kauf in Goch
Naturnahes Wohnen auf einem großzügigen Grundstück

verkauft

Beschreibung

Sie suchen eine Immobilie, die ein naturnahes Wohnen in unmittelbarer Waldnähe bietet, ein Objekt, das zusätzlich aber auch mit einem eigenen großzügigen Grundstück punkten kann? - dann könnte die hier angebotene Immobilie ihr Interesse wecken.
Das als Ein- bzw. Zweifamilien-Haus nutzbare Objekt wurde ursprünglich 1956 erbaut und im Jahr 1967 durch einen Anbau erweitert. Es verfügt über eine Gesamtwohnfläche von ca. 170 m², von der ca. 100 m² auf das Erd- und ca. 70 m² auf das Obergeschoss entfallen.
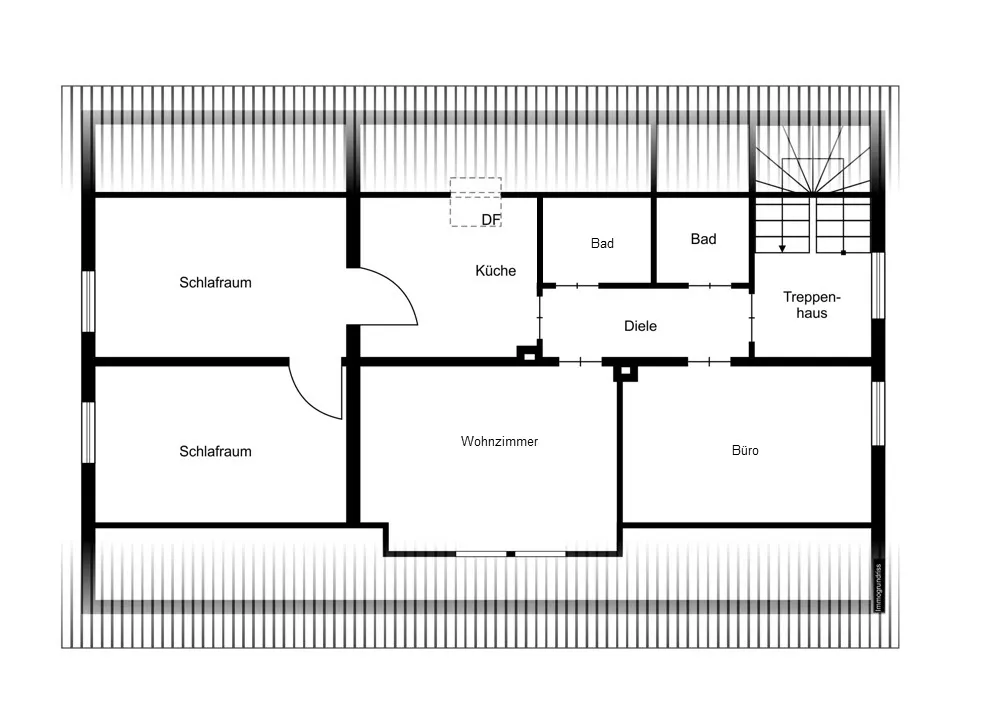
Das Erdgeschoss umfasst einen großzügigen Wohn- und Essbereich, 2 weitere Zimmer, Küche, ein Bad und den Flur mit Eingangsbereich. Das Obergeschoss verfügt über 4 Zimmer, Küche, Flur und zwei Badezimmer, ein Bad mit Badewanne und ein Bad mit einer Dusche.
Stetig durchgeführte Renovierungs- und Modernisierungsmaßnahmen in den vergangenen Jahren haben das Objekt in den heutigen Zustand versetzt. Im Jahr 2010 wurde das Dach erneuert und neu isoliert. Die Fenster wurden in 2019 und 2020 teilweise ausgetauscht. Das Badezimmer im Erdgeschoss wurde 2014 neugestaltet.
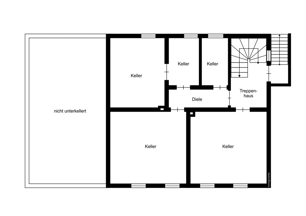
Der ursprüngliche Teil des Hauses (ohne Anbau) ist unterkellert. Eine Garage mit zusätzlicher Nutzfläche über der Garage gehört ebenfalls zum Objekt. Das großzügige Gartengrundstück (1.486 m²) erstreckt sich um das Haus und teilweise entlang der vorbeiführenden Verbindungsstrasse - in diesem Bereich ist die Kleinkläranlage vorhanden. Der Garten verfügt über unterschiedlichste Anpflanzungen, Rasenflächen, Blumenrabatten, Gartenhaus und im hinteren Bereich über einen älteren Baumbestand und verschiedene Freisitze.

Lage

Das Objekt befindet sich in ruhiger Wohnlage (fast Alleinlage) - an einem direkt angrenzenden Waldgebiet zwischen den Gemeinden Pfalzdorf und Nierswalde - beides Ortsteile der Stadt Goch - die in wenigen Minuten zu erreichen sind; unmittelbar vor dem Objekt befindet sich eine Bushaltestelle für den öffentlichen Nahverkehr.
Sowohl zur Stadt Goch als auch in die Kreisstadt Kleve sind es nur wenige Kilometer - das Objekt befindet sich etwa auf halben Weg zwischen den Städten.

Sonstiges

Für nähere Auskünfte bzw. Besichtigungstermine stehen wir nach Terminabsprache gerne zur Verfügung.'Alle in diesem Exposé enthaltenen Aussagen, Abmessungen und Preisangaben beruhen auf Angaben bzw. Unterlagen des Verkäufers (oder eines Dritten). Der Makler übernimmt hierfür keine Haftung.'

Ansprechpartner

Christina Swertz

Telefon: 02823-9759897
Telefax: +49 2823 9759898

info@swertz-heine-immobilien.de

Kontakt aufnehmen

Haus zum Kauf

Kaufpreis 398.000 €
Adresse 47574 Goch
Wohnfläche ca. 170 m²
Zimmer 7
Nutzfläche ca. 73 m²
Grundstücksfläche ca. 1.486 m²
Objekt-Nr. 500

Adresse

47574 Goch

Käuferprovision zzgl. MwSt

1,785 % Käufercourtage inkl. MwSt.

Ausstattung

Anzahl Badezimmer 3
Anzahl Zimmer 7
Baujahr 1956
Befeuerungsart Öl
Heizungsart Zentralheizung
Verkaufstatus verkauft

Aktuelle NachrichtenRund um die Immobilie

19 Februar
Heizungsprüfung und hydraulischer Abgleich: Welche Fristen gelten in 2026?
Eine optimal eingestellte Heizungsanlage spart Kosten und senkt den CO2-Ausstoß. Daher sollten Hauseigentümerinnen und Hauseigentümer ihre Heizung nach einer bestimmten Betriebsdauer von Fachleuten überprüfen lassen.
weiterlesen
12 Februar
Heizkostenprognose 2025: Trotz sinkender Energiepreise sind steigende Kosten zu erwarten
Für die Heizkostenabrechnung 2025 müssen sich Verbraucherinnen und Verbraucher trotz sinkender Energiepreise auf höhere Kosten einstellen. Grund dafür sind die kälteren Außentemperaturen in der Heizperiode: ...
weiterlesen

Erfolg! Vielen Dank für Ihre Bewertung.

Fehler! Bitte füllen Sie alle Felder aus.