Büro/Praxis zur Miete in Goch
Hochwertig neu ausgebaute Praxisräume

offen

Beschreibung

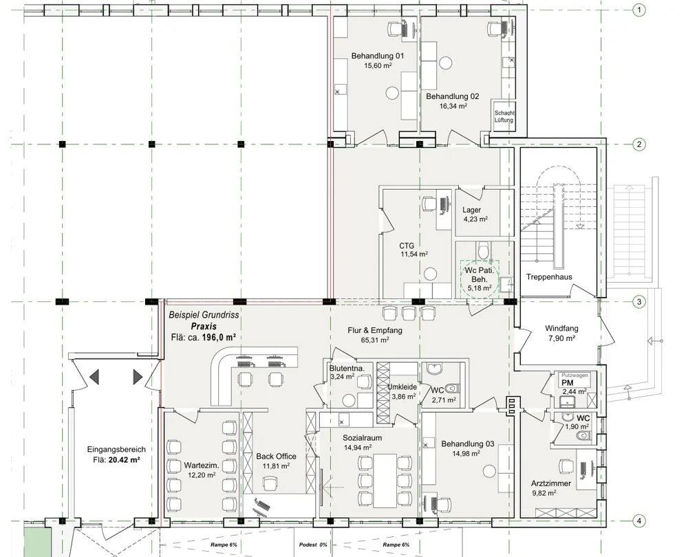
Die hier entstehende Praxisfläche mit einer Gesamtgröße von ca. 196 m² befindet sich in einer Bestandsimmobilie und wird aktuell vollständig neu errichtet. Dabei entsteht eine moderne, nach neuesten technischen und hygienischen Standards geplante Einheit, die optimale Abläufe für medizinische oder therapeutische Nutzung ermöglicht.

Der großzügige Eingangsbereich führt direkt in den offen gestalteten Empfangs- und Flurbereich, der mit über 65 m² viel Raum für einen professionellen und zugleich einladenden ersten Eindruck bietet. Angrenzend befindet sich ein komfortables Wartezimmer, das Patienten eine angenehme Atmosphäre bietet. Mehrere funktional angeordnete Behandlungsräume. Für reibungslose interne Abläufe stehen ein Backoffice, ein Sozialraum, ein Lager sowie ein Umkleidebereich zur Verfügung. Zudem sind mehrere Sanitärbereiche vorhanden, darunter ein separates Patienten-WC sowie weitere WC-Einheiten für Personal.

Da die Praxis aktuell vollständig neu errichtet und nach modernsten Standards (inkl. KfW‑40‑Bauweise, Klimaanlage und zentraler Lüftungsanlage) ausgestattet wird, können Interessenten den Grundriss noch nach ihren individuellen Vorstellungen anpassen.
So lassen sich Raumaufteilungen, Funktionsbereiche oder zusätzliche Ausstattungswünsche flexibel berücksichtigen.

Sonstiges

'Alle in diesem Exposé enthaltenen Aussagen, Abmessungen und Preisangaben beruhen auf Angaben bzw. Unterlagen des Verkäufers (oder eines Dritten). Der Makler übernimmt hierfür keine Haftung.'

Ansprechpartner

Christina Swertz

Telefon: 004928239759897
Telefax: +49 2823 9759898

info@swertz-heine-immobilien.de

Kontakt aufnehmen

Büro/Praxis zur Miete

Miete zzgl. NK Preis auf Anfrage
Adresse 47574 Goch
Gesamtfläche ca. 196 m²
Objekt-Nr. 680

Adresse

47574 Goch

Ausstattung

Verkaufstatus offen

Aktuelle NachrichtenRund um die Immobilie

19 Februar
Heizungsprüfung und hydraulischer Abgleich: Welche Fristen gelten in 2026?
Eine optimal eingestellte Heizungsanlage spart Kosten und senkt den CO2-Ausstoß. Daher sollten Hauseigentümerinnen und Hauseigentümer ihre Heizung nach einer bestimmten Betriebsdauer von Fachleuten überprüfen lassen.
weiterlesen
12 Februar
Heizkostenprognose 2025: Trotz sinkender Energiepreise sind steigende Kosten zu erwarten
Für die Heizkostenabrechnung 2025 müssen sich Verbraucherinnen und Verbraucher trotz sinkender Energiepreise auf höhere Kosten einstellen. Grund dafür sind die kälteren Außentemperaturen in der Heizperiode: ...
weiterlesen

Erfolg! Vielen Dank für Ihre Bewertung.

Fehler! Bitte füllen Sie alle Felder aus.