Haus zum Kauf in Goch
Großzügiges Ein- bis Zweifamilienhaus in Goch

verkauft

Beschreibung

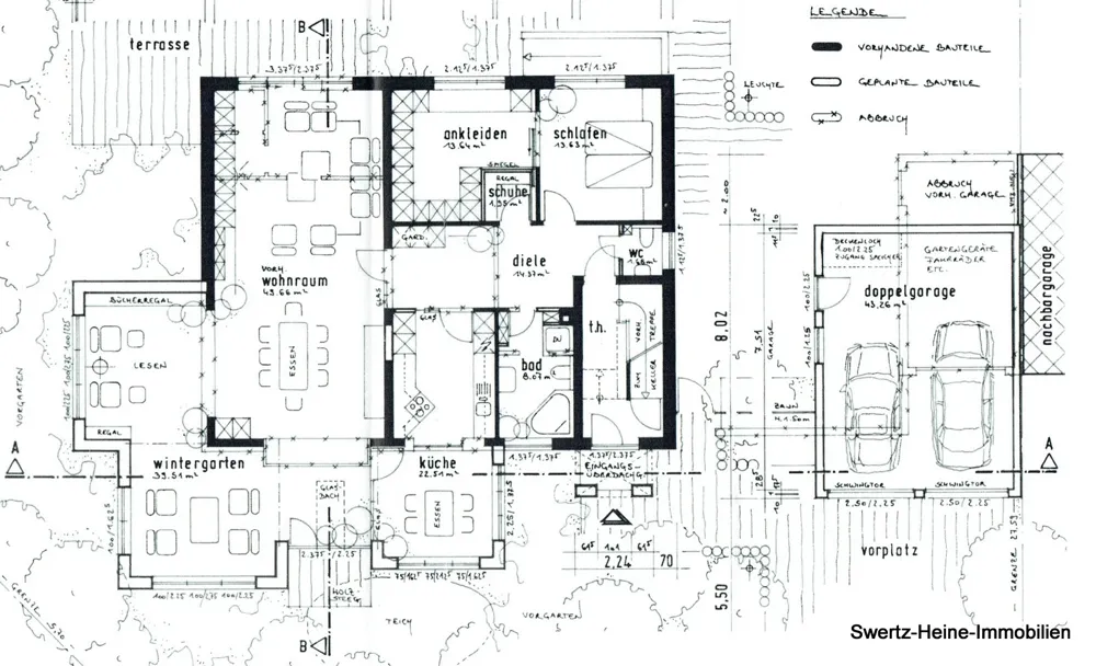
Im Angebot steht hier ein großzügiges, freistehendes 2-Familien-Haus, das im Jahr 1975 auf einem ca. 870 m² Eckgrundstück errichtet worden ist. Das Objekt verfügt über 2 Wohnebenen (Vollgeschosse), über ein separates Treppenhaus und ist komplett unterkellert. Ergänzt wird das Objekt durch eine freistehende, ca. 42 m² große Doppelgarage mit Satteldach, das wohnstandartmäßig teilausgebaut ist.
Das Erdgeschoss des Hauses, das 2005 komplett saniert und erweitert worden ist, wird durch den großzügigen Wohn- und Essbereich bestimmt, ergänzt durch einen integrierten Wintergarten, durch die teiloffene Küche, einen geräumigen Flur mit Zugang zu 2 weiteren Zimmern, dem Bad, Gäste-WC und einen kleinen Abstellraum - vom Wohnzimmer aus gelangt man auf die sich anschließende Terrasse.
Im Obergeschoss befindet sich ein großzügiges Wohnzimmer, 2 weitere Zimmer, Küche, Bad und Gäste-WC, alle Räumlichkeiten sind von dem zentral gelegenen Flur aus zugänglich. Das Kellergeschoss bietet ausreichend Nutzfläche, verfügt über einen geräumigen und vielfältig nutzbaren Hobbyraum, Vorrats- und Waschkeller mit Außentreppe zum Garten, einen Heizungskeller mit angrenzendem Tanklagerraum und einen Bereich für die entsprechenden Hausanschlüsse.
Das Grundstück ist komplett eingefriedet, verfügt über einen sehr gepflegten, umlaufenden Garten mit Rasenfläche im hinteren Bereich und einen bepflanzten Vorgarten. Zwischen Wohnhaus und separater Doppelgarage befindet sich ein Zugang mit Gartentor zum hinteren Gartenbereich; vor der Garage existieren 2 zusätzliche Stellplätze.

Ausstattung

Das Objekt befindet sich in einem sehr gepflegten Gesamtzustand, eine aufwendige Sanierung und bauliche Veränderung des Erdgeschossbereiches erfolgte in 2005. Hierbei wurden u.a. neue Kunststofffenster mit Doppelverglasung und elektrischen Rollläden verbaut, ein neuer Fliesenboden flächendeckend eingebracht, teilweise unterbrochen durch eingelassene Holzböden als gestalterisches Element. Eine in den Wohn- und Essbereich integrierte moderne Einbauküche ist ebenfalls vorhanden.
Die Räumlichkeiten der vollgeschossigen 2. Wohnebene verfügen ebenfalls über Fliesenbelag, sind auch mit Kunststofffenstern inkl. Doppelverglasung versehen und verfügen ebenfalls über Rollläden (manuell). Auch auf dieser Ebene existiert eine 2 Einbauküche, die älteren Baujahres ist; im Bad wurde mit Renovierungs- bzw. Sanierungsmaßnahmen begonnen, die nicht zu Ende geführt wurden.
Beheizt wird das Haus über eine Ölzentralheizung mit integrierter Warmwasserbereitung, hierfür existieren im separatem Tanklagerraum 2 x 5000 Liter Kunststofftanks.
Die separate Doppelgarage verfügt über elektrische Tore, Hauswasser- und Starkstromanschluß, der darüberliegende Raum ist komplett gedämmt und mit allen Versorgungsleitungen versehen (Wohnstandard). Eine Bewässerung der Außenanlagen ist über eine Grundwasserpumpe, die im Waschkeller installiert ist, ebenfalls gewährleistet.
Detailliertere Eindrücke lassen sich am ehesten durch eine Besichtigung vor Ort erfassen.

Lage

Das Haus befindet sich in zentrumsnaher Lage von Goch, im Bereich Kalbecker Str. / Voßheider Str. Die Innenstadt ist auch fußläufig in wenigen Minuten zu erreichen.
Die Stadt Goch selbst und das gesamte Umland bieten seinen Bewohnern und Gästen ein umfassendes Freizeit- und Erholungsangebot, alle Schulformen befinden sich am Ort, es bestehen sehr gute Einkaufsmöglichkeiten und die Kreisstadt Kleve ist ebenfalls nur 15 Autominuten entfernt.
Desweiteren verfügt der Standort über eine sehr gute Verkehrsanbindung, so ist man über den schnell erreichbaren Autobahnanschluss der A 57 in 45 Minuten in Düsseldorf bzw. in 25 Minuten in Nijmegen; ebenso besteht über die Regionalbahnlinie Kleve - Krefeld/Düsseldorf ein direkter Anschluß an das Ballungsgebiet Rhein-Ruhr und damit an das überregionale Schienennetz der Bundesbahn.

Sonstiges

Für nähere Auskünfte bzw. Besichtigungstermine stehen wir nach Terminabsprache gerne zur Verfügung.
'Alle in diesem Exposé enthaltenen Aussagen, Abmessungen und Preisangaben beruhen auf Angaben bzw. Unterlagen des Verkäufers (oder eines Dritten). Der Makler übernimmt hierfür keine Haftung.'

Ansprechpartner

Clemens Heine

Telefon: 02823-9759897
Telefax: 02823-9759898

info@swertz-heine-immobilien.de

Kontakt aufnehmen

Haus zum Kauf

Kaufpreis 568.000 €
Adresse 47574 Goch
Wohnfläche ca. 260 m²
Zimmer 8
Nutzfläche ca. 120 m²
Grundstücksfläche ca. 870 m²
Objekt-Nr. 439

Adresse

47574 Goch

Käuferprovision

1,785 % Käufercourtage inkl. MwSt.

Ausstattung

Anzahl Badezimmer 2
Anzahl separate WCs 2
Anzahl Stellplätze 2
Anzahl Terrassen 1
Anzahl Zimmer 8
Baujahr 1975
Befeuerungsart Öl
Heizungsart Zentralheizung
Garagenanzahl 2
verfügbar ab nach Vereinbarung
Verkaufstatus verkauft
Zustand gepflegt

Aktuelle NachrichtenRund um die Immobilie

19 Februar
Heizungsprüfung und hydraulischer Abgleich: Welche Fristen gelten in 2026?
Eine optimal eingestellte Heizungsanlage spart Kosten und senkt den CO2-Ausstoß. Daher sollten Hauseigentümerinnen und Hauseigentümer ihre Heizung nach einer bestimmten Betriebsdauer von Fachleuten überprüfen lassen.
weiterlesen
12 Februar
Heizkostenprognose 2025: Trotz sinkender Energiepreise sind steigende Kosten zu erwarten
Für die Heizkostenabrechnung 2025 müssen sich Verbraucherinnen und Verbraucher trotz sinkender Energiepreise auf höhere Kosten einstellen. Grund dafür sind die kälteren Außentemperaturen in der Heizperiode: ...
weiterlesen

Erfolg! Vielen Dank für Ihre Bewertung.

Fehler! Bitte füllen Sie alle Felder aus.