Wohnung zum Kauf in Goch
Exklusive Maisonette-Wohnung in ruhiger Wohnlage von Goch...

verkauft

Beschreibung

Sie sind auf der Suche nach einer neuen, modernen Eigentumswohnung? - Sie suchen ein Anlageobjekt oder eine Wohnung zur Selbstnutzung? - also ein Objekt, das den aktuellen Standards und Richtlinien entspricht? - dann könnte das vorliegende Angebot interessant für sie sein.
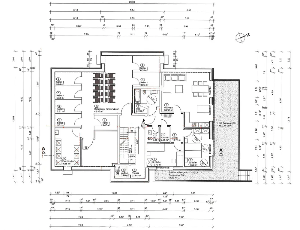
An der Marienwasserstraße/Ecke Kaplan-Büscher-Str. von Goch entsteht ein Objekt (Ferigstellung 2021) mit insgesamt 7 Wohneinheiten. Die jeweiligen Einheiten erstrecken sich auf 4 Ebenen, d.h. auf Keller,- Erd-, Ober- und Dachgeschoss (Penthouse) - inklusive Aufzug.

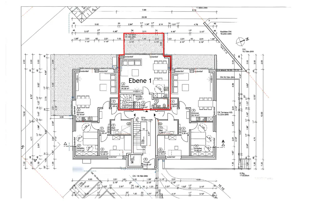
Die hier angebotene Wohnung umfasst 2 Wohnebenen (Maisonette) und verfügt über eine Wohnfläche von ca. 90,4 m² mit Wohn- und Esszimmer, offener Küche, Gäste-WC, Abstellraum und Balkon/Terrasse auf der ersten Ebene, sowie 2 weiteren Zimmern und Bad auf der 2.Ebene - diese wird über eine integrierte Treppe erreicht.

Ausstattung

Das Gebäude wird nach den anerkannten Regeln der Technik und des Bauhandwerks unter Beachtung aller behördlichen und zum Zeitpunkt der Erstellung geltenden DIN-Vorschriften errichtet.
Das Objekt wird nach KfW 55 ausgeführt.

Das Gesamtobjekt beinhaltet die nachfolgend aufgeführten, gehobenen Ausstattungsmerkmale:

- Aufzug vom Keller bis in die Penthouse Wohnung
- Energieeffizientes Heizsystem
- Fußbodenheizung mit Einzelraumregelung
- Hochwertige Ausstattung Fenster, Fliesen, Sanitär, Türen etc.
- inklusive Kellerraum
- inklusive Stellplatz
- Fahrradhaus

Lage

Das Objekt entsteht an der Marienwasserstrasse / Kaplan-Büscher-Str. in Goch,
die Innenstadt ist von hier fußläufig in wenigen Minuten zu erreichen. Die Stadt bietet vielfältige Einkaufsmöglichkeiten, sämtliche Schulformen sind vorhanden, und die Kreisstadt Kleve ist auch nur ca. 10 Autominuten entfernt. Darüber hinaus existieren sehr gute überregionale Verkehrsanbindungen, so erreicht man über die beiden Autobahnanschlüsse der A57 in weniger als 1 Stunde Fahrzeit das Ballungszentrum Rhein-Ruhr bzw. in ca. 25 Minuten die Großstadt Nijmegen. Durch die Regionalbahnlinie Kleve - Düsseldorf besteht auch eine entsprechende Anbindung an das überregionale Schienennetz der Deutschen Bahn.

Sonstiges

Für nähere Auskünfte stehen wir gerne zur Verfügung - nehmen sie Kontakt zu uns auf!
'Alle in diesem Exposé enthaltenen Aussagen, Abmessungen und Preisangaben beruhen auf Angaben bzw. Unterlagen des Verkäufers (oder eines Dritten). Der Makler übernimmt hierfür keine Haftung.'

Ansprechpartner

Christina Swertz

Telefon: 02823-9759897
Telefax: +49 2823 9759898

info@swertz-heine-immobilien.de

Kontakt aufnehmen

Wohnung zum Kauf

Kaufpreis 307.280 €
Adresse 47574 Goch
Wohnfläche ca. 90,40 m²
Zimmer 3
Nutzfläche ca. 10 m²
Objekt-Nr. 388

Adresse

47574 Goch

Käuferprovision

1,785 % Käufercourtage (inkl. 19% MwSt.)

Ausstattung

Anzahl Badezimmer 1
Anzahl Balkone 1
Anzahl Schlafzimmer 2
Anzahl separate WCs 1
Anzahl Stellplätze 1
Anzahl Terrassen 1
Anzahl Zimmer 3
Baujahr 2021
Befeuerungsart Luft/Wasser-Wärmepumpe
Fahrstuhl Personen
Heizungsart Fußbodenheizung
Stellplätze 1
Verkaufstatus verkauft

Aktuelle NachrichtenRund um die Immobilie

19 Februar
Heizungsprüfung und hydraulischer Abgleich: Welche Fristen gelten in 2026?
Eine optimal eingestellte Heizungsanlage spart Kosten und senkt den CO2-Ausstoß. Daher sollten Hauseigentümerinnen und Hauseigentümer ihre Heizung nach einer bestimmten Betriebsdauer von Fachleuten überprüfen lassen.
weiterlesen
12 Februar
Heizkostenprognose 2025: Trotz sinkender Energiepreise sind steigende Kosten zu erwarten
Für die Heizkostenabrechnung 2025 müssen sich Verbraucherinnen und Verbraucher trotz sinkender Energiepreise auf höhere Kosten einstellen. Grund dafür sind die kälteren Außentemperaturen in der Heizperiode: ...
weiterlesen

Erfolg! Vielen Dank für Ihre Bewertung.

Fehler! Bitte füllen Sie alle Felder aus.